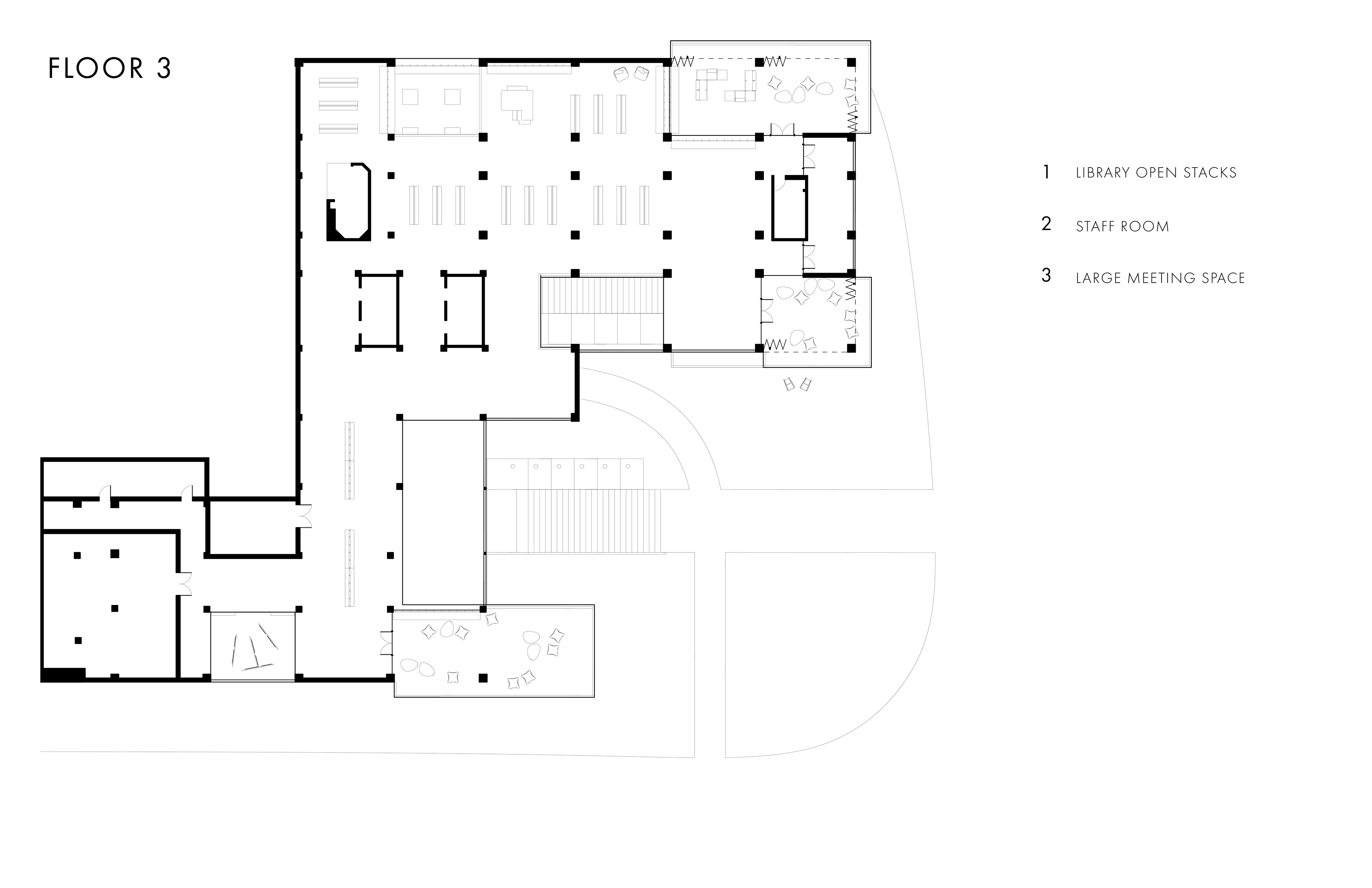
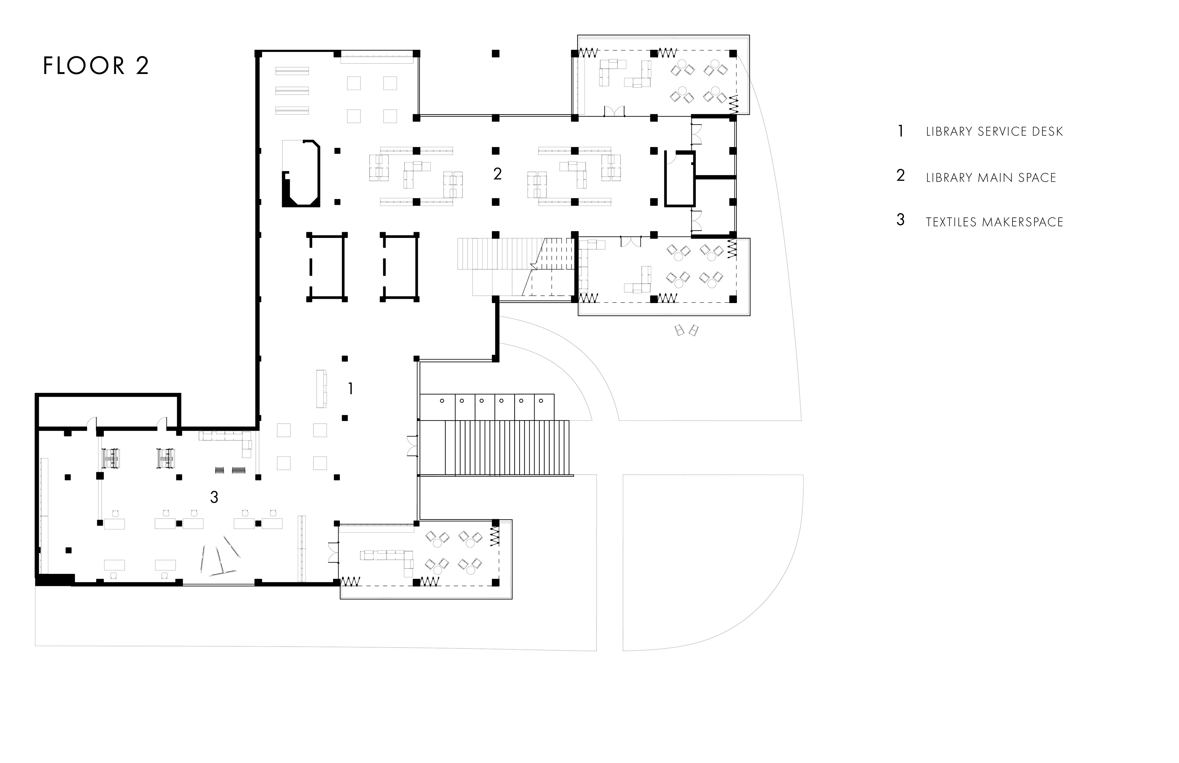
LOOK-OUT LIBRARY imagines a public space defined by openness, light, and clarity. It is a place where people can easily see inside and outside, move through, and understand what the library offers, making it feel welcoming from the very first glance.
Soft, transparent boundaries and wide sightlines open the building to the street, creating a gentle transition from outside to inside. The library becomes an extension of the neighborhood, being open, accessible, and easy to approach.
Inside, flexible spaces remain visually connected, allowing different activities to happen at once without feeling closed off. A calm and bright atmosphere encourages people to stay, read, work, or simply spend time.
The indoor-outdoor seating areas blur edges and extend the library into the landscape. Openness creates connection, and transparency becomes a way of bringing people together.
The soft, large layer of fabric bringing in the breeze of the quiet residential streets in Curtain Wall House, and the subtle distinction of inside and outside of the Hergott-Shepard Residence are reflected in the indoor-outdoor treatment of the building.
For a grand welcoming gesture to highlight the openness of the entrance to the community space, the conceptual designs of Rem Koolhaas's canopy and Aldo Rossi's staircase were taken as inspirations.
Back to Top